服务热线
021-31262005


进口轴流潜水泵是传统的粉体式机组的更新换代产品。驱动水泵的电动机时干式全封闭潜水三相异步电动机,该机组水泵与电机同轴一体,可长期潜入水下运行,具有一系列传统机组无可比拟的优点。由于水泵与电机一体,同时潜入水中,无须在安装现场耗工,耗时的机、泵轴线对中的装配工序,现场安装方便、快速。电泵潜入水中运行,可以大大简化泵站的土建结构,减少安装占地面积,节约泵站结构土建工程总造价的30%-40%。电泵潜入水中运行,噪音低,电机冷却效果好,泵站内无高温,吴噪音干扰,改善了泵站的工作环境。同时,可按要求建设全地下泵站,保持地面的环境风貌。操作方便,灵活,可随时开启和关闭机组,无需再开机前润滑水泵的胶轴承,易于实现遥控和自动控制。机组装拆方便,易于维修。采用该机组是解决水位涨落的大沿江,湖泊地区泵站防洪问题最彻底的方法,省去了泵和电机间的长轴,提高了运行安全可靠性。如果用变频控制,即可石英水位的变化自动控制电机的输入功率,达到节能降耗的目的。可实现远程控制,建立中心控制室,真正实现泵站管理现代化。
公称通径:25~500mm
流量范围:350-30000m³/h
扬程范围:2-25m
功率范围:11kw-780kw
转速范围:740-2900r/min
温度范围:-20℃~120℃
工作压力:≤1.6Mpa
泵体材质:WCB、304、316、四氟
1、进口轴流潜水泵站因土建简单,工程造价低,维护管理简便易于自动化,工作可靠性好,美化环境而得到迅速发展。
2、进口轴流潜水泵站的主要设备-潜水电泵(简称潜水泵),有潜水轴流泵和潜水混流泵,是将电机与轴流泵和混流泵结合而成的机电合一产品,是传统长轴轴流泵和混流泵的更新换代产品。
3、进口轴流潜水泵与传统长轴泵除使用场合、进出水每件]特性参数基本上保持一致外。还具有以下几点显著优势:
4、泵站工程总投资节省30%以上;
5、建设周期节约40%以上;
6、机组安装时间节约95%以上;
7、机组重量减轻50%以上;
8、省去泵站防洪墙投资;
9、维护费用低;
10、无运转噪音,操作简便,易于自动化运行;
11、地面建筑高度低,可省去泵房建筑,甚至可在地面以下建泵站。
12、轴流泵和混流泵的新老客户,在新建泵站项目中可以方便地以潜水泵替代,可在老泵站改造项目中以潜水泵更新。
⊙农田灌溉与水利;
⊙市政排放雨水及轻度污水;
⊙工业中工艺用水、冷却水;
⊙水利中调水工程。
进口轴流潜水泵名义出水口径从350、500、600、700、800、900、1000、1200、400、1600共计十种口径,流量范围0.12--12m*m*m/s,扬程范围2--14m;功率范围7.5--630KW;电压等级380V、66V、3KV、6KV、10KV。
潜水轴流泵潜水混流泵,泵段由进水喇叭口,叶轮部位,叶轮外壳和导叶体四大零件组成。
潜水电机是全密封干式异步电动机,机壳将电机封闭,电机上端电缆出线处有静密封装车,电机下端盖出轴处有转动密封装置,潜水电机具有一切运行的安全可靠性能。对密封渗漏、线圈和轴承温升均有监测、报警和保护装置,不影响电机正常运转的早期渗漏(只报警)。当线圈温度超过135℃、轴承温度超过90℃时,采用断电保护,所有保护器由一个潜水泵专用保护器进行监控,以保证潜水泵的安全使用。

| 1、接线盒盖 | 5、热保护器 | 9、渗漏报警器 | 13、下机械密封 | 17、进口喇叭 |
| 2、上端盖 | 6、定子 | 10、下端盖 | 14、导叶体 | |
| 3、渗漏报警器 | 7、转子 | 11、上机械密封 | 15、叶轮部件 | |
| 4、上轴承 | 8、下轴承 | 12、电极探头 | 16、叶轮外壳 |

| 1、接线盒盖 | 2、上端盖 | 3、渗漏报警器 | 4、上轴承 | 5、热保护器 |
| 6、定子 | 7、转子 | 8、下轴承 | 9、渗漏报警器 | 10、下端盖 |
| 11、上机械密封 | 12、电极探头 | 13、下机械密封 | 14、导叶体 | 15、叶轮部件 |
| 16、进口喇叭 |

| ·3500ZL-70G | ·350ZL-70D | ·350ZL-100 | ·350ZL-125 | ·500ZL-70G |
| ·500ZL-70D | ·500ZL-100GA | ·500ZL-100DA | ·500ZL-100GB | ·500ZL-100DB |
| ·500ZL-125G | ·500ZL-125D | ·500ZL-160D | ·500ZL-160G | ·600ZL-70 |
| ·600ZL-100G | ·600ZL-100D | ·600ZL-125 | ·600ZL-160G | ·600ZL-160D |
| ·700ZL-50 | ·700ZL-70G | ·700ZL-70D | ·700ZL-100G | ·700ZL-100D |
| ·700ZL-125G | ·700ZL-125D | ·700ZL-160G | ·700ZL-160D | ·800ZL-50 |
| ·800ZL-70G | ·800ZL-70D | ·800ZL-100G | ·800ZL-100D | ·800ZL-125G |
| ·800ZL-125D | ·900ZL-50 | ·900ZL-70 | ·900ZL-100G | ·900ZL-100D |
| ·900ZL-125 | ·900ZL-180 | ·1000ZL-50 | ·1000ZL-70 | ·1000ZL-100 |
| ·1000ZL-125 | ·1000ZL-160 | ·1200ZL-70 | ·1200ZL-100 | ·1200ZL-125 |
| ·1200ZL-160 | ·1300ZL-70 | ·1300ZL-100 | ·1300ZL-125 | ·1300ZL-160 |
| ·1400ZL-70 | ·1400ZL-100 | ·1400ZL-125 | ·1400ZL-160 | ·1600ZL-100 |
| ·1600ZL-125 | ·1600ZL-160 | |||
| ·500ZL0.6-8 | ·600ZL0.7-12 | ·600Q.7-12A | ·600ZLB0.8-16 | ·700ZL0.9-10 |
| ·700ZL0.9-10 | ·700ZL1.2-12 | ·700ZL1.4-16A | ·900ZL1.8-10 | ·900ZL1.8-10A |
| ·900ZL1.7-12 | ·900ZL1.7-12A | ·900ZL2.2-16 | ·1000ZL2.6-12 | ·1000ZL2.6-12A |
| ·1200ZL3.1-12 | ·1200ZL3.1-12A | |||
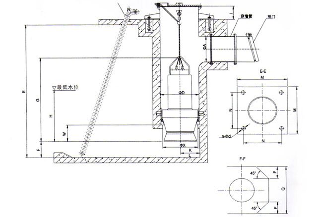
较小的进口轴流潜水泵用开关敞式进水,安装形式为井筒弯管式安装、钢制井筒式安装、混凝土预制井筒式安装。井筒弯管式安装、钢制井筒式安装由本公司提供整套井筒,混凝土预制井筒式安装由本公司提供安装底座(含防转装置)、井盖。
安装时,将潜水电泵吊入井筒着底为止,导叶体上的斜面与支架座斜面配合,止水橡皮(O型圈)起密封作用。
较大的潜水泵(叶轮直径一般在1米以上),采用带封闭进水流道的安装形式
1、井筒弯管式安装及尺寸
(1)、表中尺寸为泵的安装尺寸与泵站设计的水力控制尺寸。其中泵站设计的水力尺寸仅作为参考值。
(2)、尺寸A依据流量确定,以控制流速,减少水力损失,表中尺寸为参考值。如需要,可适当加大;尺寸E、J依据泵站具体条件确定;尺寸R为最小参考值,如条件许可,可适当加大。
上述尺寸均依据客户要求确定。
(3)、泵中心距后池壁≤K。
(4)、同池两泵中心距≥L。
2、钢制井筒式安装及尺寸

(1)、表中尺寸为泵的安装尺寸与泵站设计的水力控制尺寸,其中泵站设计的水力尺寸仅作为参考值。
(2)、尺寸A依据流量确定,以控制流速,减少水力损失,表中尺寸为参考值,如需要,可适当加大;尺寸E、J、R依据泵站具体条件确定。
(3)、泵中心距池壁≤K。
(4)、同池两泵中心距≥L。
3、混凝土预制井筒式安装及尺寸
(1)、表中尺寸为泵的安装尺寸与泵站设计的水力控制尺寸。其中泵站设计的水力尺寸仅作为参考值。
(2)、尺寸A依据流量确定,以控制流速,减少水力损失,表中尺寸为参考值。如需要,可适当加大;尺寸E依据泵站具体条件确定;尺寸R为最小参考值,如条件许可,可适当加大。
(3)、泵中心距后池壁≤K。
(4)、同池两泵中心距≥L。
4、封闭进水流道的混凝土预制井筒式安装及尺寸
簸箕形进水流道

(1)、进水流道可配肘形、钟形、簸箕形流道,安装尺寸表中的流道尺寸为簸箕形流道(仅供参考)。
(2)、淹没深度除需要满足表中要求外,还必须比流道进口上缘至少高500mm。
(3)、一般来说,泵段安装尺寸由供货方提供,淹没深度由供货方与设计方共同确定。再通过装车试验验证确定;进出水流道的几何尺寸由设计单位按规范进行数模计算,初步确定后再进行装置模型试验,厂家提供的流道几何尺寸供设计单位设计时参考。
(4)、供货方提出的流道几何尺寸仅供用户现设计方参考。